ул. Генерала Белобородова, д. 46, стр. 18
тел.: +7 (985) 760-06-22
e-mail: info@trimstroy.com
С уважением к памяти
С уважением к памяти
Советская действительность не отличалась обширным выбором мест проведения отпуска. Тем не менее, были курортные места, которые советские граждане особенно стремились посетить. Этим славилась Юрмала. Надо сказать, что и в современной действительности Юрмала сохранила статус элитного места, посетить которое совсем не просто.
Итак, в начале июня 2017 г. к нам обратился заказчик, который долгие годы предпочитал проводить ежегодный отпуск в Юрмале. И как это было принято в те годы, память об отдыхе фиксировали фотохудожники, в том числе фотохудожники, работающие на пляжах и набережных. Времена были стабильными, стилизованный баркас на набережной Юрмалы ежегодно встречал отдыхающих, менялись только года на фото, привезенных домой с курорта. Именно такая фотография послужила идеей создания мемориального комплекса.

Стояла непростая задача — создать, произвести и смонтировать комплекс в один сезон.
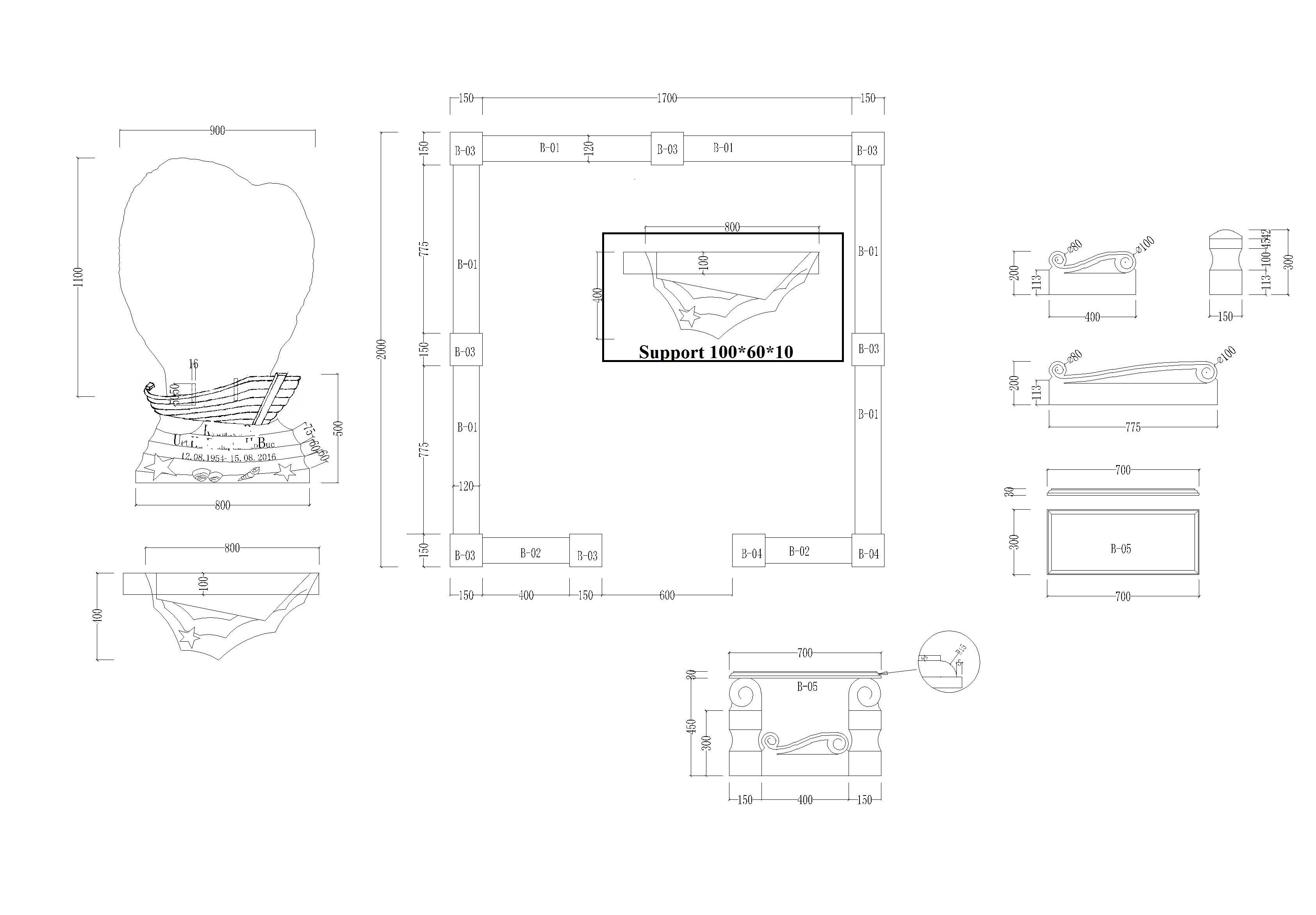
Началась работа над образом будущего памятника. Требовалось сохранить образ стилизованного баркаса и морскую тематику. Художник сделал наброски.




Следующим этапом заказчик выбрал гранит. Это был гранит редкого нежно-розового оттенка с безликим названием G681. Обычно эти цвета характерны мраморам, которые по сути, являются прессованным мелом и плохо выдерживают условия нашего климата, требуют различных пропиток и регулярного ухода.

Были отобраны элементы морской тематики, которые должны были войти в композицию комплекса.









Началась работа над финальной стилистикой памятника, формой цоколя по периметру и оформлением.


Шаг за шагом пришло понимание окончательного вида памятника, его компонентов.

Мы приступили к созданию строительных чертежей и схем.




После утверждения итогового вида памятника, строительных чертежей, компоновки в начале июля 2017 г. комплекс был запущен в производство.
Через 3 недели появились первые результаты работы.













В середине сентября 2017 г. контейнер с комплексом был выгружен на нашем складе.
Началась кропотливая работа по декорированию памятника. Текст было принято решение нанести объемными бронзовыми буквами. Каждая буква требовала высверловки по трафарету 2-х посадочных гнезд с последующей вклейкой двухкомпонентным полимером. Очень кропотливая работа, требующая особой аккуратности. Но результат того стоил.


Особая работа предстояла с созданием портрета. Заказчик выбрал цветной портрет на всю высоту камня в виде паруса-сердца. Его наш художник – выпускник пензенского художественного училища, член союза художников Москвы, писал красками в местной гранитной мастерской. Это сложная работа, особенно помня о том, что гранит сильно отличается от холста и стоять он будет под открытым небом в Москве. Была снята полировка с лицевой стороны камня, применены специальные праймеры для подготовки поверхности и работа началась. Параллельно начался монтаж комплекса на месте захоронения, подготовка фундаментов, облицовка и сборка гранитного цоколя и подставки. После написания портрета был применен специальный защитный лак, позволяющий сохранить краски в непростых погодных условиях и защитить от ультрафиолета.



Комплекс был сдан в октябре 2017 г.
Мы смогли уложиться в 5 месяцев от создания идеи, производства в Китае, получения контейнера в Москве, декорирования и монтажа.






